Bolzano,
Alto-Adige
Trilocale con ampia terrazza e due balconi in vendita
Descrizione
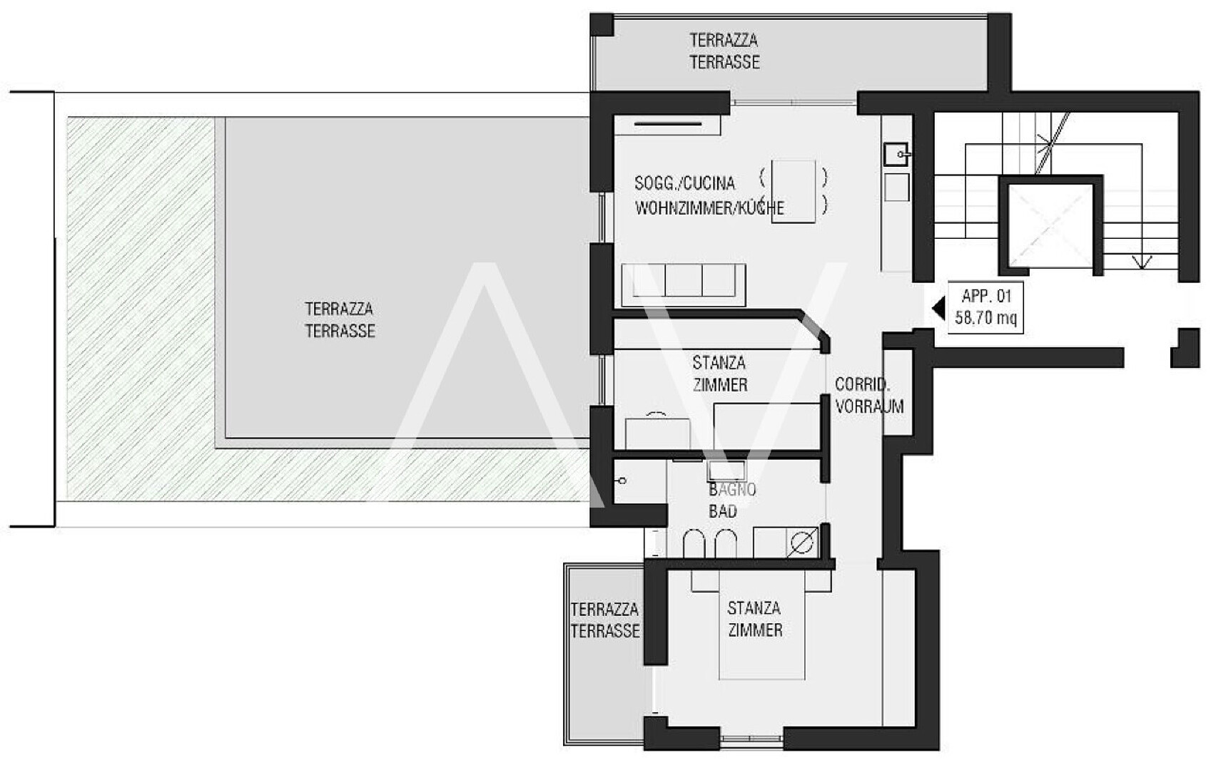
Luminoso trilocale in vendita al primo piano di un edificio nuovo ultimato nel 2024 a Bolzano con una superficie netta di circa 59 metri quadrati. L’ampia terrazza invita a trascorrere piacevoli momenti all’aria aperta ed è completata da altri due balconi. Le grandi superfici vetrate rendono gli ambienti molto luminosi e accoglienti. Il riscaldamento a pavimento è centralizzato tramite pompa di calore e l’appartamento rientra nella classe energetica CasaClima A Nature. Una cantina offre spazio aggiuntivo, l’ascensore garantisce un accesso comodo e la posizione centrale permette di raggiungere con facilità tutti i servizi della città. È possibile acquistare un garage separatamente.
Info
Superficie commerciale
94,00 m²
Superficie netta
59,00 m²
Piano
1
Bagni
1
Camere da letto
2
Anno di costruzione
2024
Condizione immobile
Nuovo
Controllo del riscaldamento
Centralizzato
Cantina
Sì
Balcone
Sì
Terrazza
Sì
Ascensore
Sì
Codice di riferimento
ATI801
Posizione
Caricamento mappa
Planimetria














